Get the Magazine

From a few blocks away, the glass and concrete towers above Montreal’s Centre Sanaaq quietly blend into the city’s growing residential skyline. Up close, however, the seemingly generic — albeit well-resolved — high-rise complex reveals a different public face. At grade, the podium levels of a new mixed-use complex host Centre Sanaaq, a distinctly malleable civic hub combining a library, community centre, performance venue, café, gallery spaces, study zones, reading rooms and a children’s play area.

Situated just south of Cabot Square at the western end of downtown Montreal, Centre Sanaaq is designed to serve the culturally diverse Peter-McGill neighbourhood, including the city’s historically underserved Inuit population. Named for Sanaaq, a novel by Inuk author Mitiarjuk Attasie Nappaaluk, itself derived from the Inuktitut word “sana,” meaning to create, work, or sculpt. The community hub channels this spirit into a user-driven series of active spaces, which are carefully combined with quieter zones of learning, respite and contemplation.

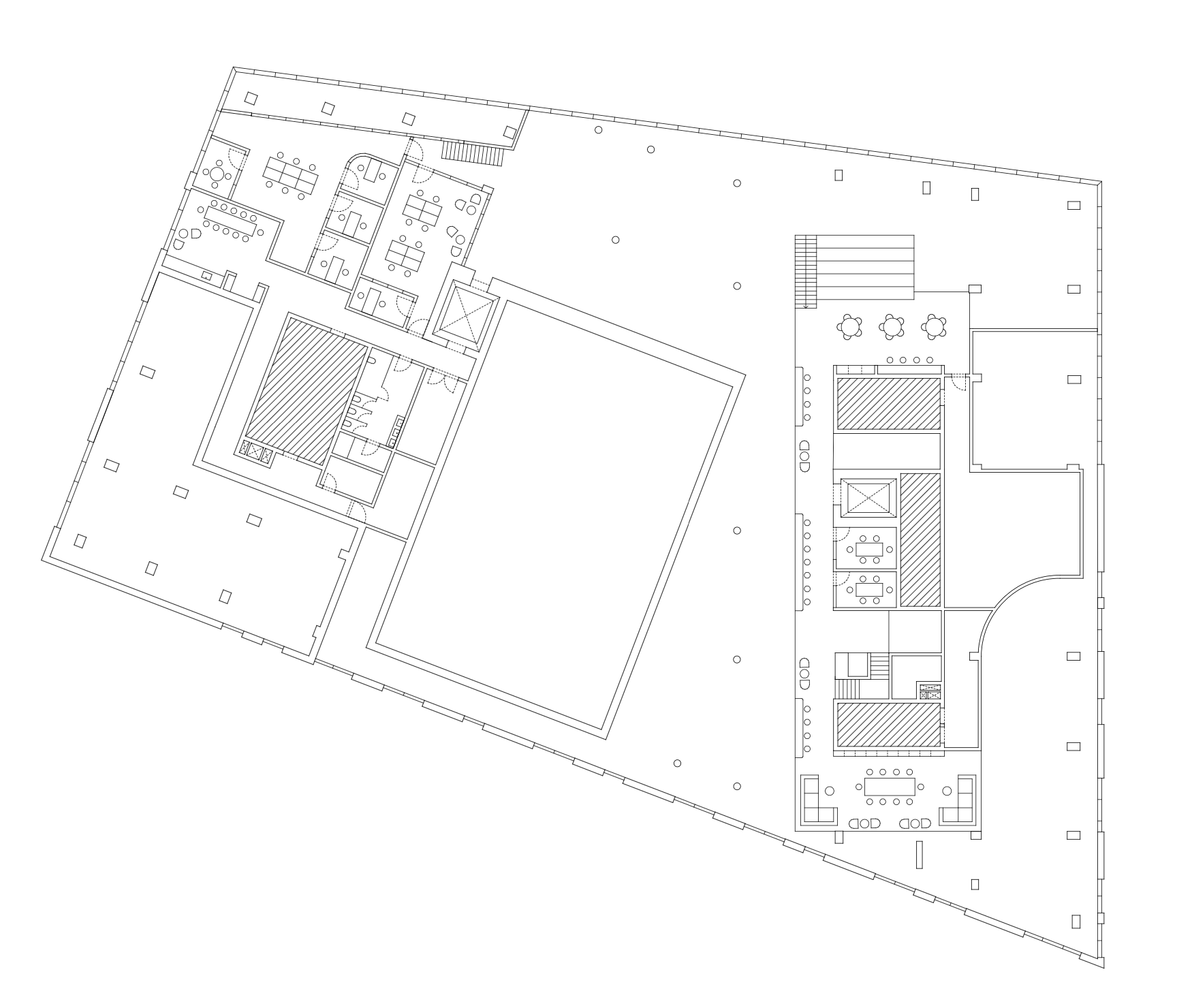
Designed through a close collaboration of local studios Pelletier de Fontenay, Architecture49, and Atelier Zébulon Perron, the 2.5-storey, 5,000-square-metre complex is conceived as an indoor extension of the public urban realm. Organized to accommodate a non-prescriptive and easily adaptable program, the generous space is anchored by transparent full-height fenestration and a simple polished concrete floor, allowing for an intuitive, transition from the outdoors.

The open-ended, protean quality is deeply intentional. Developed and designed in partnership with over local 30 community organizations, the Sanaaq Centre follows a participatory governance model, where collective decision-making allows the program to evolve with changing neighbourhood needs. Accompanying the May 2025 opening, for example, an exhibit of Inuit art graced the upper-level library.

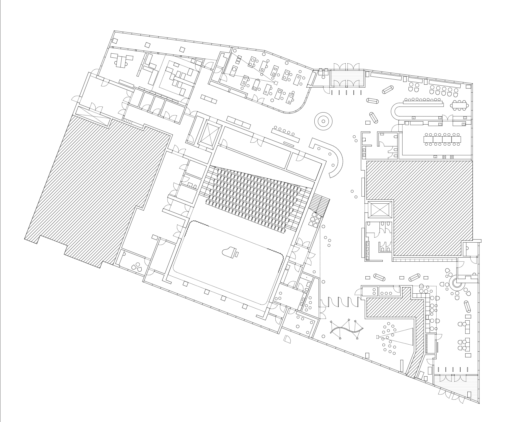
According to the design team, the interior unfolds as a series of “islands.” Open common spaces quietly transition to more secluded reading nooks. On the ground floor, an open “agora” spills out to a coffee shop, multi-purpose room, as well as the black box theatre, where a variety of dance performances and Indigenous-led events have taken place throughout the year. Ahead of the opening, an open public call for program invited community members to shape plans for the year ahead.

A central light-filled stair leads to the upper storey, where the library anchors a calmer zone. Here, book and media collections are paired with additional multi-purpose rooms, a media lab, and a children’s play area. To modulate all that bustle, careful attention was paid to acoustics across both levels. Coffered wood ceilings and walls help modulate the ambient din, along with suspended fabrics and simply yet elegantly resolved application of exposed sprayed cellulose.

According to the designers, the eclectic quality of the spaces themselves reflects the diverse, evolving community-led nature of the program. “The Centre adopts collage as an architectural language, allowing diverse textures and tones to coexist in harmony,” notes the design team. “Aluminum grating, glass, wood paneling, polished concrete, sprayed cellulose, and soft textiles compose the project’s material concept. This layered palette captures the Centre’s spirit as a mosaic of voices, uses, and identities, a built reflection of Montreal’s social and cultural diversity.”

Although some Indigenous leaders have criticized a lack of engagement with the neighbourhood’s growing wealth disparities, the Centre Sanaaq was quickly met with local praise. According to Kitty Gordon of the Makivvik Corporation (a regional Inuit organization representing Nunavik in northern Quebec), the adaptable, flexible spaces are creating new opportunities. “It opens a place for expression in all of its forms,” Gordon told the CBC.

The spirit of innovation had an early origin. Like numerous public projects across Montreal, the design was sourced via an international competition. Although similar procurement models remain a relatively rarity across the rest of Canada, they offer a staging ground for new design thinking, allow teams from around the world to share their ideas for the future of community space. Here, the local trio of Pelletier de Fontenay, Architecture49, and Atelier Zébulon Perron have proven worthy winners.


Montreal’s Centre Sanaaq is Designed to Evolve with the Community

Pelletier de Fontenay, Architecture49, and Atelier Zébulon Perron team up to conjure an eclectic, open-ended collage of a civic hub.

leaderboard-3